
Yksittäisiä toimistohuoneita 10 – 34 m2
Yksittäisiä toimistohuoneita10 – 34 m2
Osoite
Kauppakatu 21, Iisalmi
Rakennus- /peruskorjausvuosi
Valmistunut 1979 ja laajennus 1983. Rakennus on peruskorjattu laajasti 2010.
Pinta-ala
3154 m²
Tiloissa toimii
- Huonekalukeidas Oy
- Stemma
- Kulta Kotipalvelut
- Pohjois-Savon Muisti ry
- Ravintola Butterfly
- Toimistohotelli vuokraus huoneet 10-34m²
- Iljan Isännöintikeskus Oy
- Savon Juristit Oy
- Pohjois-Savon Ely Keskus
- Ykköstapahtumat Oy
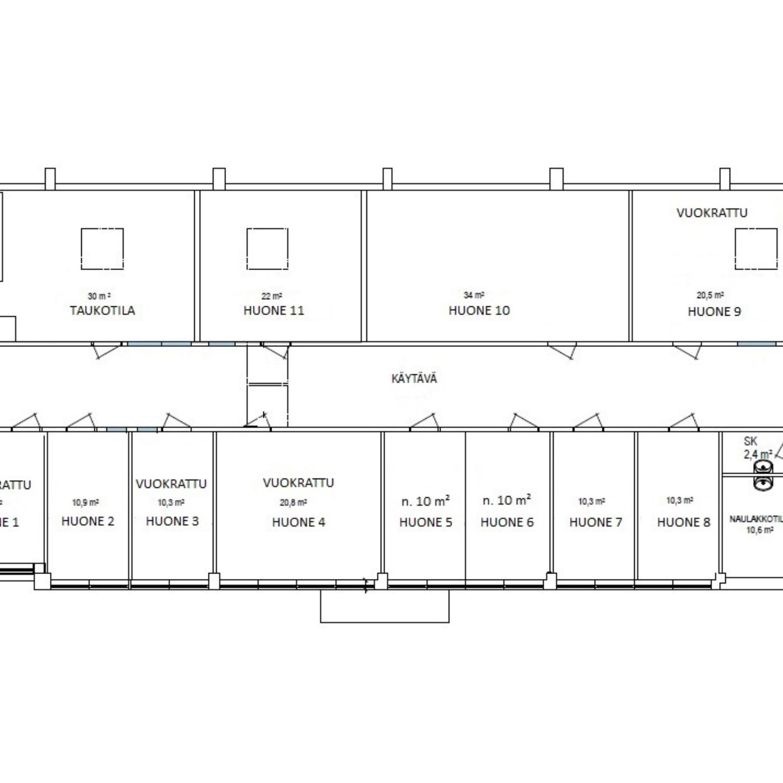
Remontoidut huoneet, hyvät yhteistilat – Heti vapaa!
- 11 huonetta, joiden pinta-alat ovat 10 – 34 m². Tilat ovat pintaremontoitu 2020
- Huoneet ovat vuokrattavissa yksittäin tai isompina kokonaisuuksina
- Yhteiskäytössä taukotila ja sosiaalitilat
- 2. kerros, pääosalla ikkunat etelään
- Kaukolämpö, koneellinen tulo- ja poistoilmanvaihto ja viilennyslaitteisto
- Vuokra sisältää lämmityksen ja kiinteistön perushuoltotyöt, taukotilan ja sosiaalitilojen käytön ja jätehuollon
- Heti vapaa
- VUOKRATAAN
Ota yhteyttä, sovitaan esittelyaika!
Toimitila on myös muunneltavissa erilaisiksi kokonaisuuksiksi, joten mikäli vuokratila ei täysin vastaa tarpeitasi niin ole rohkeasti yhteydessä niin kartoitetaan mahdollisuudet rakentaa juuri teidän tarpeitanne vastaaviksi.
Vapaata liiketilaa


























































