
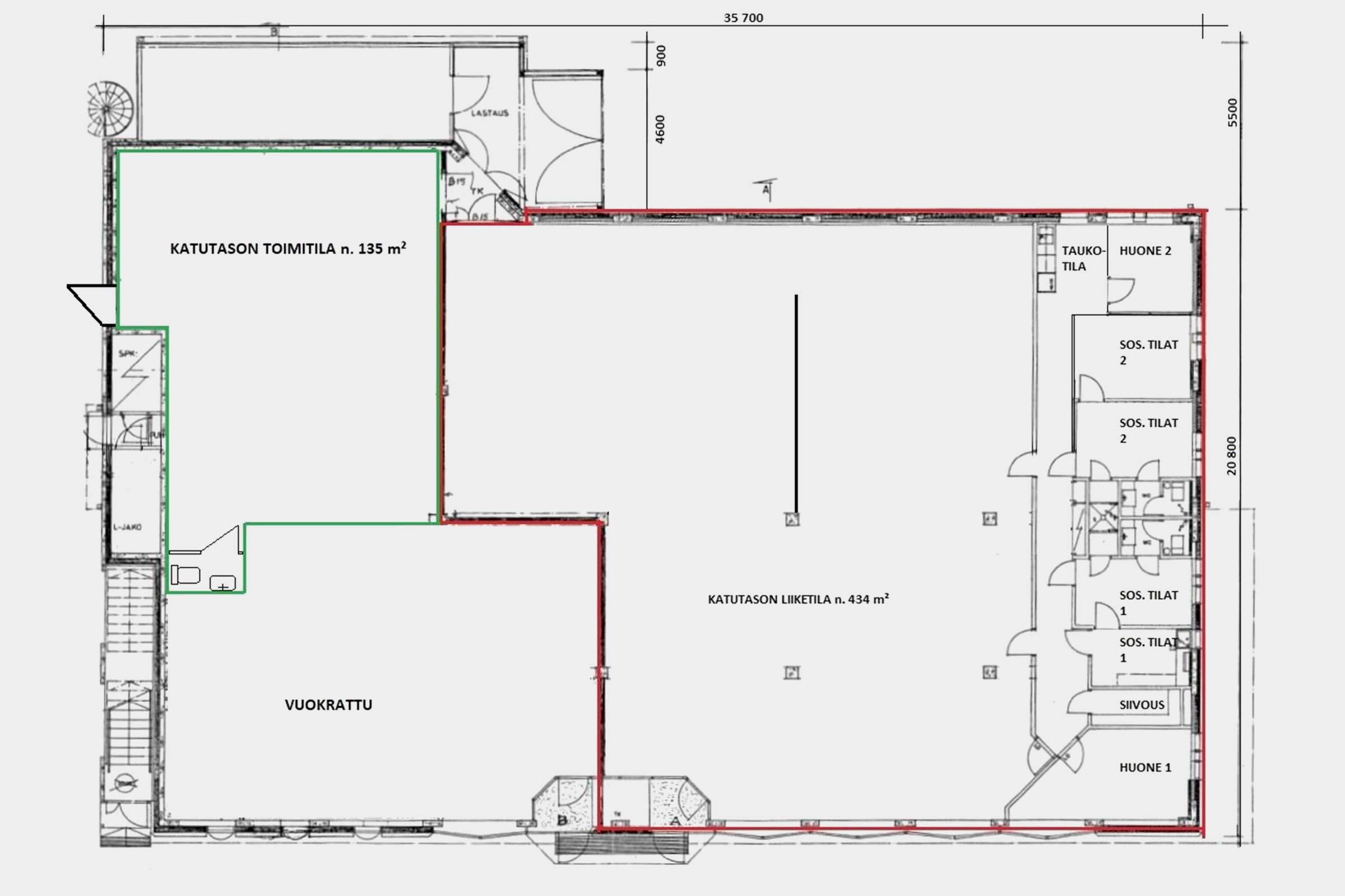
Katutason liiketila keskustassa 434 m²
Katutason liiketila keskustassa 434 m²
Osoite
Kyllikinkatu 4, Iisalmi
Rakennus- /peruskorjausvuosi
1991
Pinta-ala
883 m²
Tiloissa toimii
- Aspa Palvelut Oy
- Lassila&Tikanoja Oyj
- Asunnot yksityisillä
Katutason liiketila keskustassa 434 m²
- Siistikuntoinen tila
- Näyteikkunat Kyllikinkadulle, laattalattiat, koneellinen ilmanvaihto, sisäkorkeus n. 3 m
- Tilan takaosassa tavaranlastausovet
- Tilassa ovat toimineet mm. Alko, taidegalleria ja kuntokeskus
- Heti vapaa
- VUOKRATAAN
- Mahdollisuus liittää myös vuokrattava 135 m² tila samana tilakokonaisuutena.
Ota yhteyttä, sovitaan esittelyaika
Ota yhteyttä, sovitaan esittelyaika!
Toimitila on myös muunneltavissa erilaisiksi kokonaisuuksiksi, joten mikäli vuokratila ei täysin vastaa tarpeitasi niin ole rohkeasti yhteydessä niin kartoitetaan mahdollisuudet rakentaa juuri teidän tarpeitanne vastaaviksi.
Vapaata liiketilaa









































