
Liiketila 439 m²
Liiketila 439 m²
Osoite
Savonkatu 23, Iisalmi
Rakennus- /peruskorjausvuosi
1987
Pinta-ala
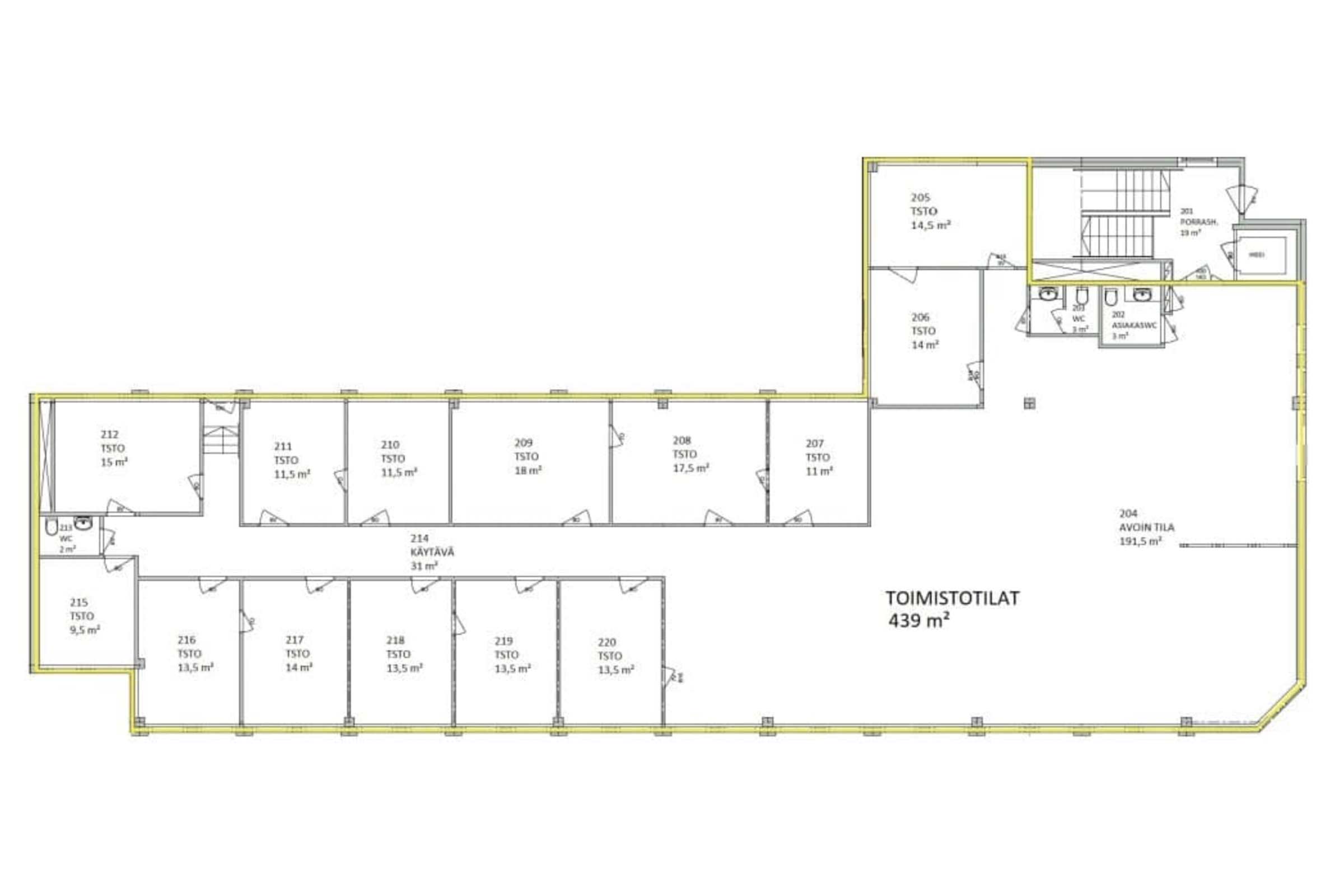
Koko rakennuksen pinta-ala 1746 m²
Tiloissa toimii
- Aspa Palvelut Oy
- R-Kioski
- Savon Ict-Palvelut Oy
- Järviseudun työterveys Oy (tulossa)
Vuokratilassa on:
- Tilat 2. kerroksessa
- Tilava aula + 14 huonetta + 3 wc = 439 m²
- Porraskäynti ja hissi
- Tauko- ja sosiaalitilat
- Kaukolämpö ja koneellinen ilmanvaihto
- Viilennys Savonkadun puoleisissa huoneissa
- VUOKRATAAN
Ota yhteyttä, sovitaan esittelyaika
Ota yhteyttä, sovitaan esittelyaika!
Toimitila on myös muunneltavissa erilaisiksi kokonaisuuksiksi, joten mikäli vuokratila ei täysin vastaa tarpeitasi niin ole rohkeasti yhteydessä niin kartoitetaan mahdollisuudet rakentaa juuri teidän tarpeitanne vastaaviksi.
Vapaata liiketilaa











































