
Laadukasta toimistotilaa keskustassa
Laadukasta toimistotilaa keskustassa
Osoite
Savonkatu 26, Iisalmi
Rakennus- /peruskorjausvuosi
Rakennusvuosi 2001
Pinta-ala
Koko rakennuksen pinta-ala 2553 m²
Tiloissa toimii
- Pohjois-Savon Käräjäoikeus ja Edunvalvonta
- Makkonen Yhtiöt toimisto
- Asianajotoimisto Kääriäinen Oy
Laadukasta toimistotilaa keskustassa
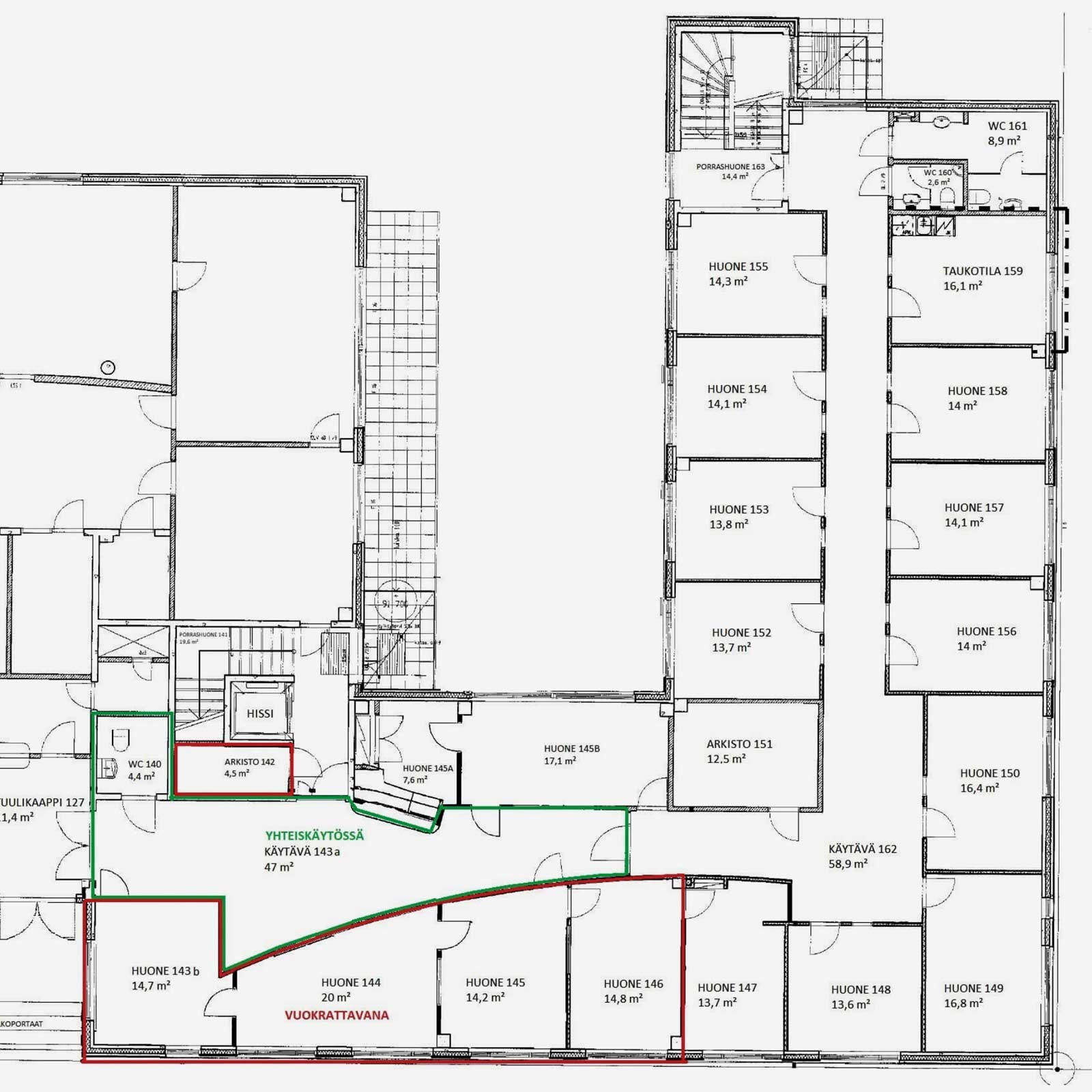
- Yhteiskäytössä oleva aula ja wc = 47 m²
- 4 huonetta ja arkisto = 68 m²
- Käynti Oikeustalon pääovesta
- Kaukolämpö ja koneellinen ilmanvaihto jäähdytyksellä
- Heti vapaa
- VUOKRATAAN
Ota yhteyttä, sovitaan esittelyaika
Kohteen muut vapaat liiketilat
Klikkaa kohdetta katsoaksesi tarkemman tiedot.
Ota yhteyttä, sovitaan esittelyaika!
Toimitila on myös muunneltavissa erilaisiksi kokonaisuuksiksi, joten mikäli vuokratila ei täysin vastaa tarpeitasi niin ole rohkeasti yhteydessä niin kartoitetaan mahdollisuudet rakentaa juuri teidän tarpeitanne vastaaviksi.
Vapaata liiketilaa

























































